ザ・パークハウス晴海タワーズ ティアロレジデンス 6階
◆月島エリアに佇むタワーマンション
◆充実した共有設備が魅力
◆24時間有人管理でセキュリティ面も安心
ローンシミュレーションこの物件を購入した場合の、月々の支払い価格の一例です。借り入れを保証するものではございません。
- 返済期間
-
- 金利
-
- ボーナス時の増額(1回分)
-
- 借入金額:
-
- 頭金:
-

- 毎月の返済額:
(※元利均等方式 金利5.00%まで ※返済年数5~50年まで入力できます)
(※ボーナスは年2回で計算しています。1000万円まで入力できます)
(※物件購入時、その他諸費用が発生する場合がございます)
ポイント・特徴
物件概要
【中古マンション】 物件番号:76607970 情報更新日:2026年01月08日 次回更新予定日:2026年01月22日| 所在地 | 東京都中央区晴海2丁目 | ||
|---|---|---|---|
| 交通 | |||
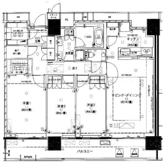
| 間取り/詳細 | 3LDK | ||
| 専有面積/バルコニー面積 | 101.80㎡/20.75㎡ | ルーフバルコニー面積/テラス面積/専用庭面積 | -/-/- |
| 価格 | 2億5,000万円 | ||
| 管理費 | 32,560円 | ||
| 修繕積立金 | 23,930円 | 修繕積立基金 | - |
| 権利金 | - | 駐車場/月額料金 | 無/- |
| 土地の敷金/保証金 | -/- | 借地料/借地期間 | -/- |
| 土地権利 | 所有権 | 国土法届出要否 | 不要 |
| 用途地域 | 準工業 | 地勢 | - |
| 種別/構造 | 中古マンション/鉄骨鉄筋コンクリート | 向き | 北 |
| 築年月(築年数) | 2016年 3月 (築9年) | ||
| 所在階/階建 | 6階/49階建 | 棟総戸数/販売戸数 | 661戸/1戸 |
| 管理組合有無 | - | 管理形態 | 管理会社に全部委託 |
| 管理員の勤務形態 | 常駐 | 管理会社 | - |
| 取引態様 | 仲介 | 現況 | 居住中 |
| 引渡し | 相談 | 建築確認番号 | - |
| 物件番号 | 76607970 | 取引条件の有効期限 | 2026年01月22日 |
| 設備条件 |
|
||
| 取扱会社 |
|
||
※地図上に表示される物件の位置は付近住所に所在することを表すものであり、実際の物件所在地とは異なる場合がございます。











